DETAIL NEMOVITOSTI
DŮM 3 - BYT 3A2
VOLNÝ K REZERVACI

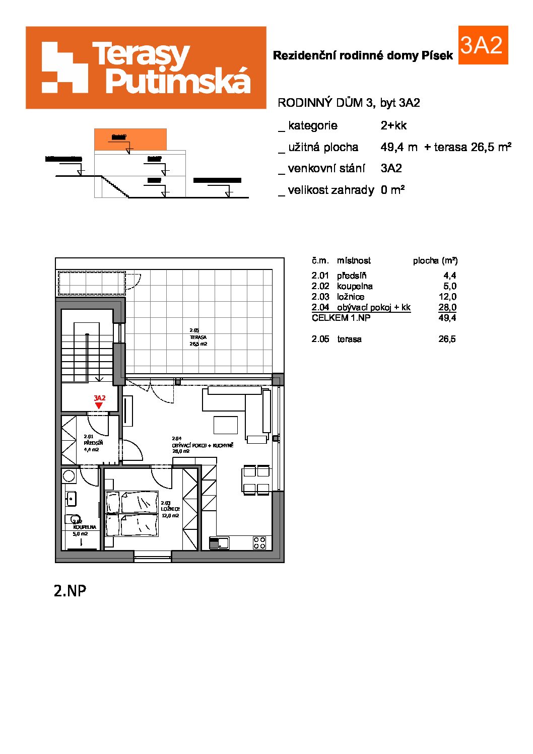
RODINNÝ DŮM 3 - BYT 3A2
Novostavba – moderní byt ve výstavbě 49,4 m² + terasa 26,5 m² + parkovací stání
V zastoupení developera nabízíme k prodeji moderní bytovou jednotku o dispozici 2+kk s krásnou terasou, která vzniká v rámci projektu Terasy Písek – II. etapa (Putimská Vysoká).
Dům je třípodlažní, přičemž vstup do domu je v úrovni 2. NP – byt se tak nachází pouze o jedno schodiště výše.
Dispozice a výměry:
podlahová plocha bytu: 49,4 m²
terasa: 26,5 m², na terase je umístěn skladový, venkovní box, který však nijak nezavazí a neruší výhled
venkovní parkovací stání v ceně
SCHÉMA, PŮDORYSY, FOTKY
DALŠÍ INFORMACE
Byt je koncipován s důrazem na praktické využití prostoru, světlo a přímý kontakt s exteriérem.
Z obývací části je vstup na prostornou terasu orientovanou do klidného vnitrobloku.
Standard zahrnuje moderní provedení koupelny, přípravu pro kuchyňskou linku dle výběru budoucího vlastníka, podlahové vytápění a kvalitní stavební materiály odpovídající současným energetickým a technickým požadavkům.
Lokalita – Putimská Vysoká:
Putimská Vysoká představuje jednu z nejžádanějších rezidenčních částí Písku – tiché, bezpečné a plně etablované místo pro klidné rodinné bydlení.
Zástavbu zde tvoří převážně nízkopodlažní rodinné domy a menší bytové domy, které jsou obklopeny vzrostlou zelení.
Lokalita nabízí výjimečnou kombinaci klidu, soukromí a dostupnosti města – do centra Písku se dostanete autem během pár minut, v pěší či cyklistické vzdálenosti se nachází supermarkety, zastávky MHD, vlakové i autobusové nádraží, školy i příroda.
Projekt Terasy Písek – kvalita s lokálním podpisem:
Projekt navazuje na úspěšnou první etapu Terasy K Lipám, která byla dokončená v roce 2022 na Hradišti. Za výstavbou stojí renomovaná písecká stavební společnost, která klade důraz na precizní zpracování, kvalitní materiály a dlouhodobou hodnotu nemovitostí.
Byty jsou navrženy tak, aby spojovaly moderní architekturu s příjemnou městskou atmosférou a blízkostí přírody.
Shrnutí hlavních výhod:
novostavba ve výstavbě, možnost úprav dle přání klienta
prostorná terasa s praktickým skladovým boxem
parkovací stání v ceně
moderní energeticky úsporné bydlení
oblíbená a klidná lokalita Putimská Vysoká







