DETAIL NEMOVITOSTI
DŮM 3 - BYT 3A1
VOLNÝ K REZERVACI

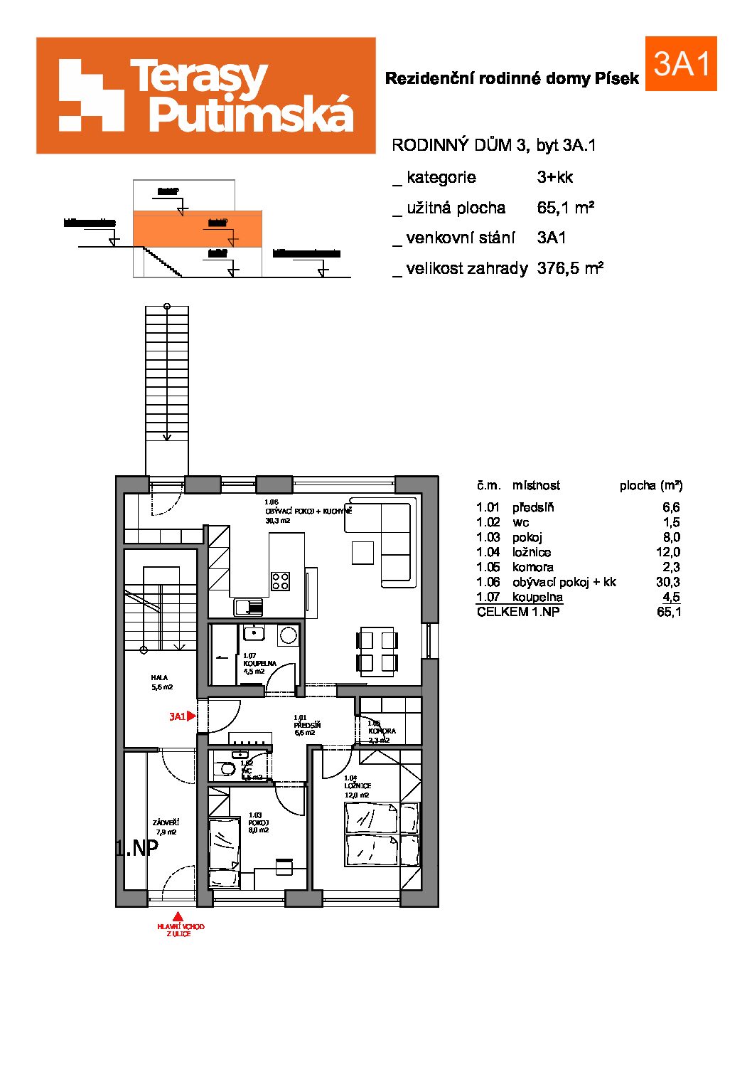
RODINNÝ DŮM 3 - BYT 3A1
Novostavba – moderní byt ve výstavbě | 65 m² + zahrada 376 m² + parkovací stání
Nabízíme k prodeji moderní bytovou jednotku o dispozici 3+kk, která vzniká v rámci projektu Terasy Písek – II. etapa (Putimská Vysoká).
Byt se nachází ve 2. nadzemním podlaží domu, avšak vstup je přímo z ulice, což jej činí ideálním také pro osoby se sníženou pohyblivostí či pro ty, kdo preferují pohodlný bezbariérový přístup. Schody na zahradu vedou z obývacího pokoje. Na zahradě je možné vybudovat zahradní domek potřebný pro uložení všeho potřebného.
Dispozice a výměry:
podlahová plocha bytu: 65,1 m²
zahrada: 376,5 m²
venkovní parkovací stání v ceně
SCHÉMA, PŮDORYSY, FOTKY
DALŠÍ INFORMACE
Byt je koncipován s důrazem na praktické využití prostoru, světlo a přímý kontakt s exteriérem.
Z obývací části je vstup na zahradu orientovanou do klidu a zeleně.
Standard zahrnuje moderní provedení koupelny, přípravu pro kuchyňskou linku dle výběru budoucího vlastníka, podlahové vytápění a kvalitní stavební materiály odpovídající současným energetickým a technickým požadavkům.
Lokalita – Putimská Vysoká:
Putimská Vysoká představuje jednu z nejžádanějších rezidenčních částí Písku – tiché, bezpečné a plně etablované místo pro klidné rodinné bydlení.
Zástavbu zde tvoří převážně nízkopodlažní rodinné domy a menší bytové domy, které jsou obklopeny vzrostlou zelení.
Lokalita nabízí výjimečnou kombinaci klidu, soukromí a dostupnosti města – do centra Písku se dostanete autem během pár minut, v pěší či cyklistické vzdálenosti se nachází supermarkety, zastávky MHD, vlakové i autobusové nádraží, školy i příroda.
Projekt Terasy Písek – kvalita s lokálním podpisem:
Projekt navazuje na úspěšnou první etapu Terasy K Lipám, která byla dokončená v roce 2022 na Hradišti. Za výstavbou stojí renomovaná písecká stavební společnost, která klade důraz na precizní zpracování, kvalitní materiály a dlouhodobou hodnotu nemovitostí.
Byty jsou navrženy tak, aby spojovaly moderní architekturu s příjemnou městskou atmosférou a blízkostí přírody.
Shrnutí hlavních výhod:
- novostavba ve výstavbě, možnost úprav dle přání klienta
- bezbariérový přístup – vstup přímo z ulicevelká zahrada
- parkovací stání v ceně
- moderní energeticky úsporné bydlení
oblíbená a klidná lokalita Putimská Vysoká






